STRUCTURAL CONSULTING ENGINEERS

Post Tensioning
Suspended and Non-Suspended Floor plates including PT Shop Drawings.
Industrial Buildings
Full Design of Pavements, Steel Structures and Reinforced Blockwork Retaining and non-Retaining Walls.

Industrial Pavements
Design of Industrial Pavements. Pavements include Post Tensioned, Fibre and Normally Reinforced Rigid Pavements.

Solar Modelling and Strengthening Reports
Solar and Hail Load modelling to existing buildings. Identifying solar arrangements to avoid or reduce strengthening demands.

Industrial Fitouts and Office Extensions
Design of Extensions and fitouts to existing Warehouses and Industrial Structures

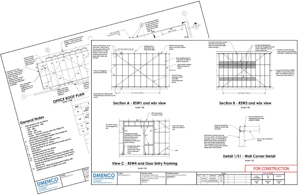
Light Gauge Steel Wall Framing
Light Gauge Steel Wall Framing Design and Marking Plans

Gantry Crane Retrofit
Gantry Crane Retrofit to existing warehouse. All steel elements including connections modelled in 3D. Material Schedules for New and Demolished elements were provided allowing for the quantification of steel weight.
ABOUT US
Dmenco is a boutique structural consulting company. We pride ourselves in designing efficiently and with best practices in mind. We are licensed engineers in Queensland and Victoria. Our work includes Commercial, Industrial, Residential and Domestic Structures.
QUESTIONS?
Have any questions? We are always open to talk about structure, ideas, and how we can help you.
